สำนักงาน 02-509-2324

SM-H3-104001.16

สนใจติดต่อ 082-5514990

สเปคแบบ  

รหัสแบบ : SM-H3-104001.16
บ้านสไตล์ : Mediterranean Style
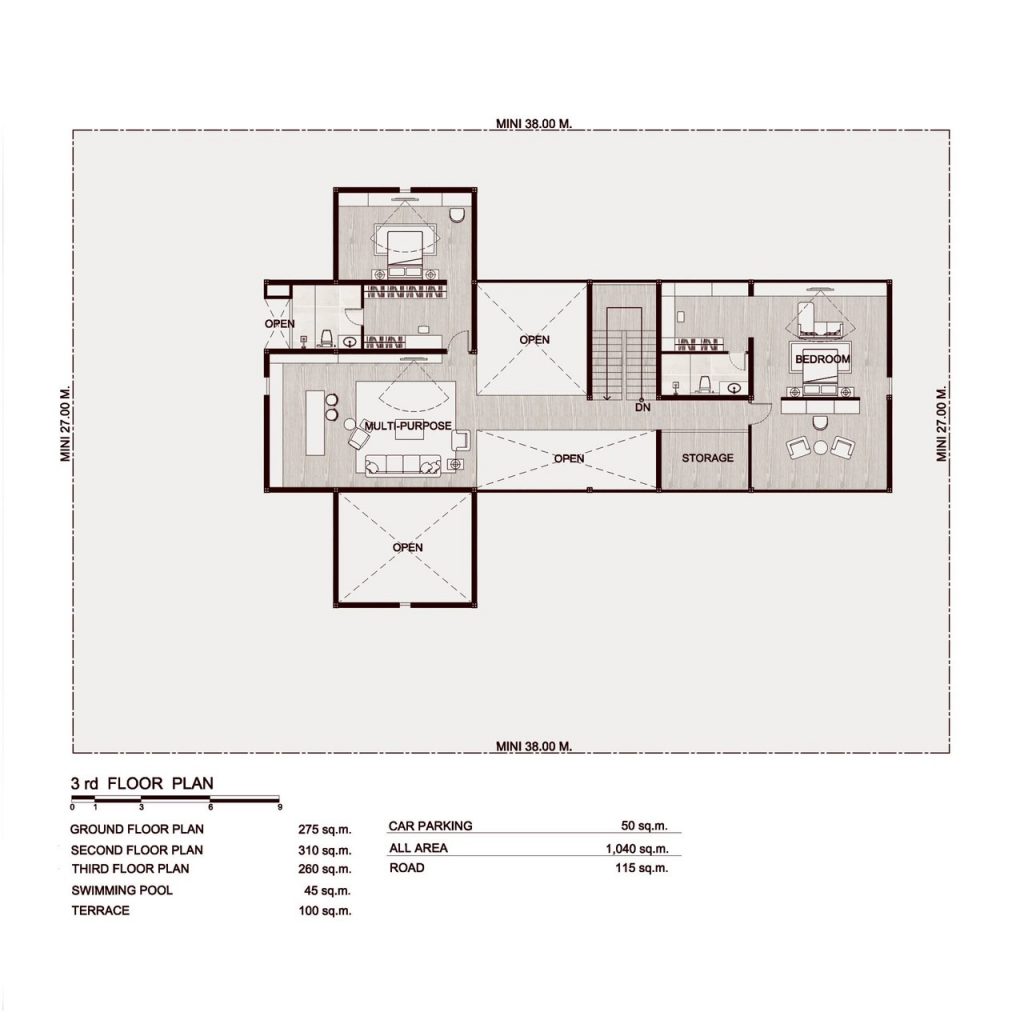
พื้นที่ใช้สอย : 1040 ตร.ม. ขนาดที่ดิน : 257 ตร.ว.
จำนวน : 2 ชั้น ที่ดินกว้าง : 38 ม.
ห้องนอน : 7 ห้อง ที่ดินลึก : 27 ม.
ห้องน้ำ : 8 ห้อง สระว่ายน้ำ : มีสระว่ายน้ำ
ห้องครัว : 1 ห้อง ที่จอดรถ : 3 คัน

ราคาออกแบบ  

ราคาออกแบบบ้าน ราคารวม
แบบบ้านสำเร็จรูป -
ปรับแบบ ออกแบบใหม่ -

SIR.MAN New Series ❄️ 01 - SM-H3-104001.16
Area 1,040 sq.m. 7 Bedrooms — 8 WC — 3 Car park

แบบบ้านสไตล์ยุโรป พื้นที่ 1,040 ตร.ม 7ห้องนอน 8ห้องน้ำ 3พื้นที่จอดรถ SM-H3-104001.16

SIR.Man บริษัทออกแบบ ออกแบบสไตล์ยูโร

บริษัทรับออกแบบ แบบบ้านสไตล์ยูโร ออกแบบตกแต่งภายใน ยินดีให้คำปรึกษา ทุกวัน เวลา 9:00 - 17:00 น.
บริษัท อาร์คิเทค บีเคเค จำกัด 57 ซอยรามอินทรา 65 แยก 4 แขวงท่าแร้ง เขตบางเขน กรุงเทพมหานคร 10230

ออกแบบบ้านสไตล์ยูโร

มือถือ : 082-5514990

สำนักงาน : 02-509-2324

LineID : gimyong

INBOX : sirman

facebook: sirman